JARDIM DE INFÂNCIA E ESCOLA DO 1º CICLO DOS FIDALGUINHOS
INTRO
A ideia base para o edifício em projeto apoia-se numa reflexão que procura em simultâneo privilegiar três níveis de abordagem: 1. Aprofundar o programa preliminar fornecido, na sua transposição espacial, de modo a tornar legível o carácter pedagógico das soluções e articulações espaciais, otimizar o desempenho funcional através da caracterização clara do esquema organizativo e distributivo dos espaços bem como dos principais espaços servidos, quer na sua hierarquia espacial, quer no controlo ambiental dos mesmos. 2. Reavaliar de forma critica o estudo preliminar articulando-o com os diversos aspetos regulamentares. 3. Tornar bem clara a proposta, nas suas relações interior/exterior e interior/interior coordenando-a com os diferentes aspetos construtivos, nomeadamente na racionalização da malha estrutural, no controlo energético passivo de todas as envolventes exteriores, centralização dos espaços técnicos e ainda a seleção dos materiais de modo a controlar os custos de construção e da futura manutenção e exploração do edifício.
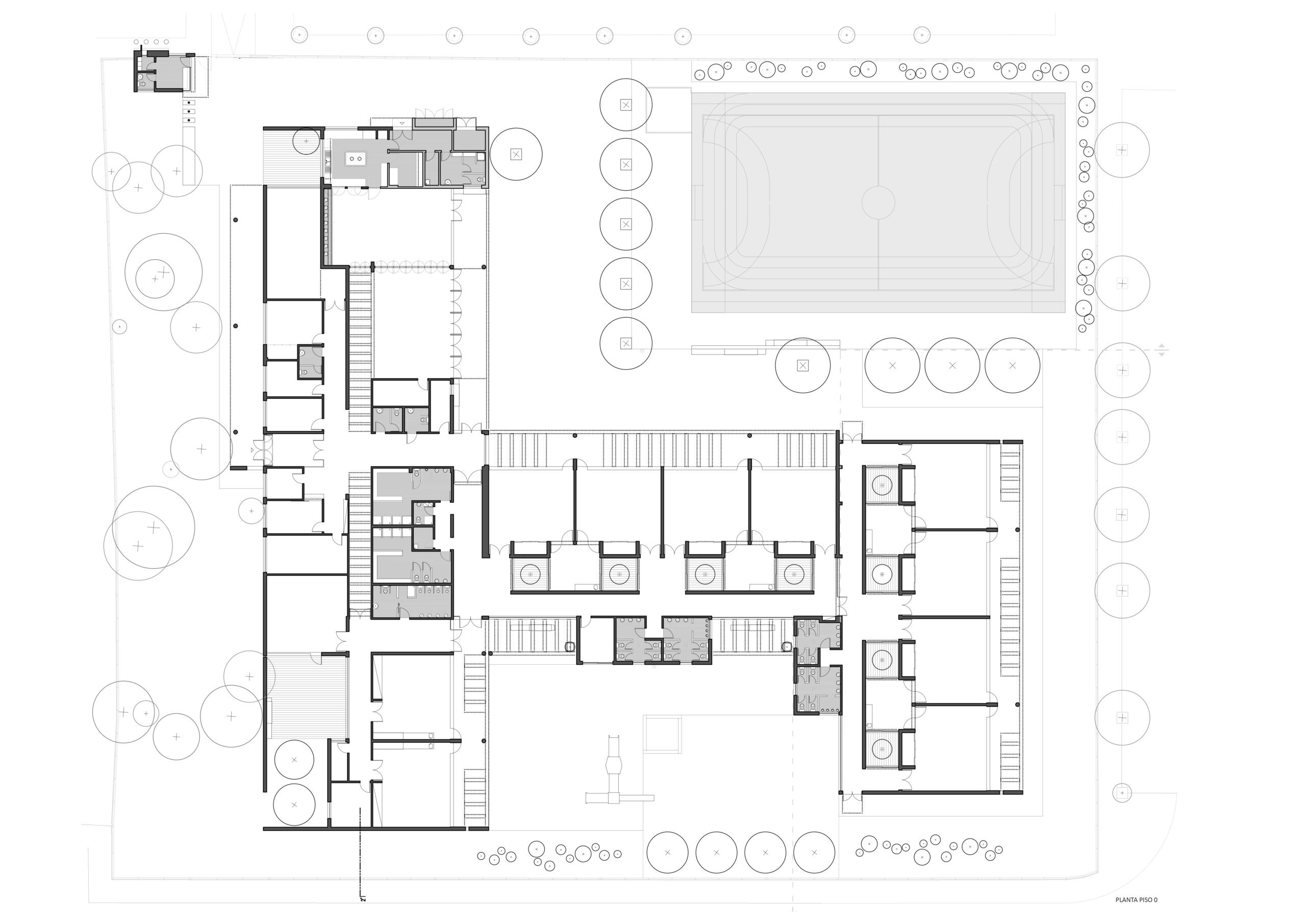
Assim, propôs-se a criação de um objeto arquitetónico constituído por um corpo em forma de J com um acesso a partir do núcleo onde se encontram localizadas todas as atividades comuns. Este átrio de acesso torna-se assim o ponto de partida na aquisição de novas competências e saberes diversos, aqui simbolizados pelos jogos de luz e efeito cromático dos envidraçados
É também a partir deste acesso que se distribuem axialmente as valências propostas e núcleo administrativo e para a zona do ensino pré-escolar.
Ocupando o núcleo dos espaços criados, encontra-se a zona de convivo – sala polivalente e refeitório, onde se acede através de circulações horizontais em que a sua característica marcante e simultaneamente simbólica da articulação vertical dos saberes é a iluminação zenital. Pela carga simbólica, este tipo de solução foi também escolhido como acesso à biblioteca
Após a área de convívio tem-se acesso à zona do ensino básico o qual por ser exigida o seu faseamento construtivo, terá continuidade de evolução no sentido do exterior.
As salas afetas ao ensino do 1º ciclo são contíguas ocupando uma ala onde se rasgaram pátios num alinhamento visual com as salas de artes correspondentes. Com estes pátios, para além da iluminação correta destas, pretende-se proporcionar a permeabilidade visual entre estes espaços de criatividade, acentuando assim o carácter transversal na articulação de saberes.
As árvores que se propõem plantar em caldeira nos vários pátios, permitem a sua inclusão em projetos pedagógicos das turmas, podendo ser trabalhados conteúdos ligados á ecologia, biologia, noções temporais e cidadania, entre outros, bem como desenvolver o sentido de responsabilidade e autonomia em trabalho de grupo.
O edifício proposto apresenta-se com três dois corpos prismáticos ortogonais de um só piso, mas com cotas de cércea diferenciadas, de modo a cumprir não só o programa como simultaneamente a criar uma movimentação do objeto arquitetónico.
Como proposta de organização funcional das diferentes valências ficaram todos os espaços distribuídos num só piso e constituindo unidades funcionais interligadas pela zona de convívio.
Assim, propôs-se a criação de um objeto arquitetónico constituído por um corpo em forma de J com um acesso a partir do núcleo onde se encontram localizadas todas as atividades comuns. Este átrio de acesso torna-se assim o ponto de partida na aquisição de novas competências e saberes diversos, aqui simbolizados pelos jogos de luz e efeito cromático dos envidraçados
É também a partir deste acesso que se distribuem axialmente as valências propostas e núcleo administrativo e para a zona do ensino pré-escolar.
Ocupando o núcleo dos espaços criados, encontra-se a zona de convivo – sala polivalente e refeitório, onde se acede através de circulações horizontais em que a sua característica marcante e simultaneamente simbólica da articulação vertical dos saberes é a iluminação zenital. Pela carga simbólica, este tipo de solução foi também escolhido como acesso à biblioteca
Após a área de convívio tem-se acesso à zona do ensino básico o qual por ser exigida o seu faseamento construtivo, terá continuidade de evolução no sentido do exterior.
As salas afetas ao ensino do 1º ciclo são contíguas ocupando uma ala onde se rasgaram pátios num alinhamento visual com as salas de artes correspondentes. Com estes pátios, para além da iluminação correta destas, pretende-se proporcionar a permeabilidade visual entre estes espaços de criatividade, acentuando assim o carácter transversal na articulação de saberes.
As árvores que se propõem plantar em caldeira nos vários pátios, permitem a sua inclusão em projetos pedagógicos das turmas, podendo ser trabalhados conteúdos ligados á ecologia, biologia, noções temporais e cidadania, entre outros, bem como desenvolver o sentido de responsabilidade e autonomia em trabalho de grupo.
O edifício proposto apresenta-se com três dois corpos prismáticos ortogonais de um só piso, mas com cotas de cércea diferenciadas, de modo a cumprir não só o programa como simultaneamente a criar uma movimentação do objeto arquitetónico.
Como proposta de organização funcional das diferentes valências ficaram todos os espaços distribuídos num só piso e constituindo unidades funcionais interligadas pela zona de convívio.
DESENHOS
INFO
Localização: Fidalguinhos, Barreiro
Status: Concluído (Concurso Público - 1ºPrémio)
Ano: 2005
Cliente: Câmara Municipal do Barreiro
Área: 2402.35 m2
Levantamento Topográfico: Joaquim Vieira
Arquitetura: MA Arquitetos
Arquitetura Paisagista: MA Arquitetos
Especialidades: MD Engenharia, Eng. António Trindade, Eng. Jorge Marques, MA Arquitectos
Obra: MIMOGAL
Fiscalização: Câmara Municipal do Barreiro
Fotografias: MA Arquitetos
Status: Concluído (Concurso Público - 1ºPrémio)
Ano: 2005
Cliente: Câmara Municipal do Barreiro
Área: 2402.35 m2
Levantamento Topográfico: Joaquim Vieira
Arquitetura: MA Arquitetos
Arquitetura Paisagista: MA Arquitetos
Especialidades: MD Engenharia, Eng. António Trindade, Eng. Jorge Marques, MA Arquitectos
Obra: MIMOGAL
Fiscalização: Câmara Municipal do Barreiro
Fotografias: MA Arquitetos