EDIFÍCIO 107
INTRO
O projeto decorre da intenção da Baía do Tejo, SA em reabilitar um edifício existente na sua propriedade, prevendo-se que a sua ocupação seja com atividades a instalar com ateliers/espaços de trabalho ligados a áreas culturais e criativas.
O Edifício 107 tem como conceito a “Simplificação da Geometrização”, esta denominação resulta da necessidade de contrariar a significativa extensão, sentida no primeiro contacto com o edifício existente. Para contornar essa horizontalidade pretendeu-se simplificar o seu volume e criar um ritmo vertical que desconstrua essa extensão.
A intervenção pretende refletir os valores de memória, autenticidade e singularidade da sua envolvente, em conformidade com um lado mais moderno. Ou seja, pretendeu-se em simultâneo reinterpretar o seu aspeto industrial conferindo uma imagem contemporâneo que se assume como uma “tela” a toda a atividade a desenvolver no seu interior.
O Edifício 107 tem como conceito a “Simplificação da Geometrização”, esta denominação resulta da necessidade de contrariar a significativa extensão, sentida no primeiro contacto com o edifício existente. Para contornar essa horizontalidade pretendeu-se simplificar o seu volume e criar um ritmo vertical que desconstrua essa extensão.
A intervenção pretende refletir os valores de memória, autenticidade e singularidade da sua envolvente, em conformidade com um lado mais moderno. Ou seja, pretendeu-se em simultâneo reinterpretar o seu aspeto industrial conferindo uma imagem contemporâneo que se assume como uma “tela” a toda a atividade a desenvolver no seu interior.
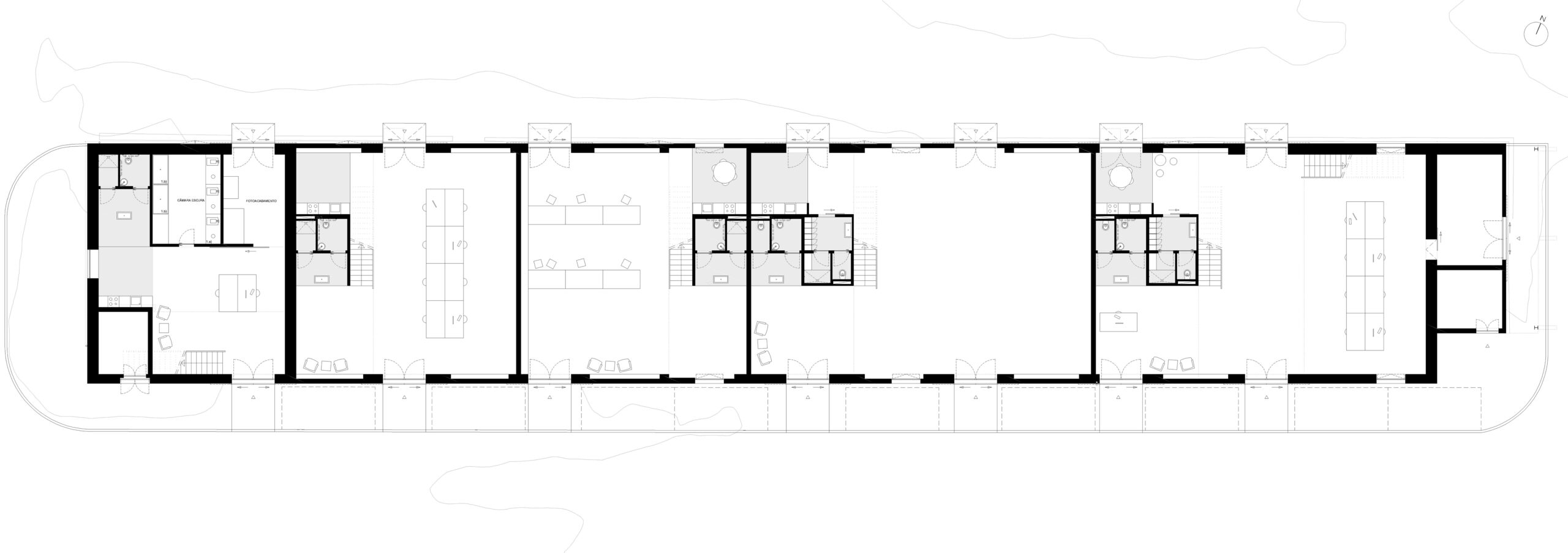
DESENHOS
INFO
Localização: Rua 26, Parque Empresarial da Baía do Tejo, Barreiro
Status: Ongoing
Ano: 2020
Cliente: Baía do Tejo S.A.
Área: 207 m2
Levantamento Topográfico: GEOTRILHO
Levantamento Arquitetónico: MA Arquitetos
Arquitetura: MA Arquitetos
Especialidades: ENGLISPLAN, TRAÇO ABERTO E NICHOS URBANOS
Visualizacoes 3D: MA Arquitetos
Status: Ongoing
Ano: 2020
Cliente: Baía do Tejo S.A.
Área: 207 m2
Levantamento Topográfico: GEOTRILHO
Levantamento Arquitetónico: MA Arquitetos
Arquitetura: MA Arquitetos
Especialidades: ENGLISPLAN, TRAÇO ABERTO E NICHOS URBANOS
Visualizacoes 3D: MA Arquitetos